


负压吸料输送泵 --技术咨询:189 7586 1596
n 产品概述
JT.F负压吸料输送泵,是以锁气器、料气分离器、罗茨真空泵相组合的一套低压吸送系统。通过罗茨真空泵抽吸系统内的空气形成负压,并将锁气器给入的粉体吸送至粉气分离器内,完成粉体的输送。
n 结构特点
JT.F负压吸料输送泵,通过罗茨真空泵(或离心风机)所产生强劲的负压值,使输送管道压力低于外部环境压力,效避免有毒有害的粉尘外泄。即使系统中存在破损的漏尘点,也不会对环境造成污染。负压吸送泵所产生的管道流速较低,且粉体在吸送过程中沿管道中间流动,对管壁磨损小。整个系统设备简单、结构紧凑、工艺布置灵活,一台真空泵即可满足多点同时进料和多点卸料的工况要求。
n 输送原理
JT.F负压吸料输送泵,以罗茨真空泵(或离心风机)作为动力气源,通过抽吸系统内的空气,促使输送管道内形成低于大气的负压。锁气器匀速转动将粉体定量给入混合室,同时真空泵产生的强劲负压气流与混合室的粉体形成气固两相流。在一定流速下,粉体沿输送管道吸送至终端料气分离设备,粉体在重力或离心力的作用下分离开来,并落入仓底。空气经料气分离装置净化后由罗茨真空泵(或离心风机)排入大气。
n 应用范围
JT.F低负压吸料输送泵,以其粉尘不外泄的独特优势,被广泛的应用于化工投料,冶炼、农药、电子领域。输送当量距离≤150m,垂直高度≤25m,堆比重≤2.0t/m3,粉体细度≤45目,含水率≤3%(以抓紧后松手,自由落体时不成团为基准),粉体瞬时温度≤150℃。(以上数据匀取设备极限仅作为选型参考)
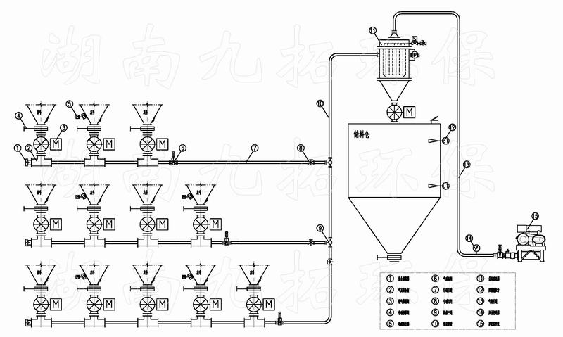
n 输送工艺
多灰斗收集工艺一:

定点投料工艺二:

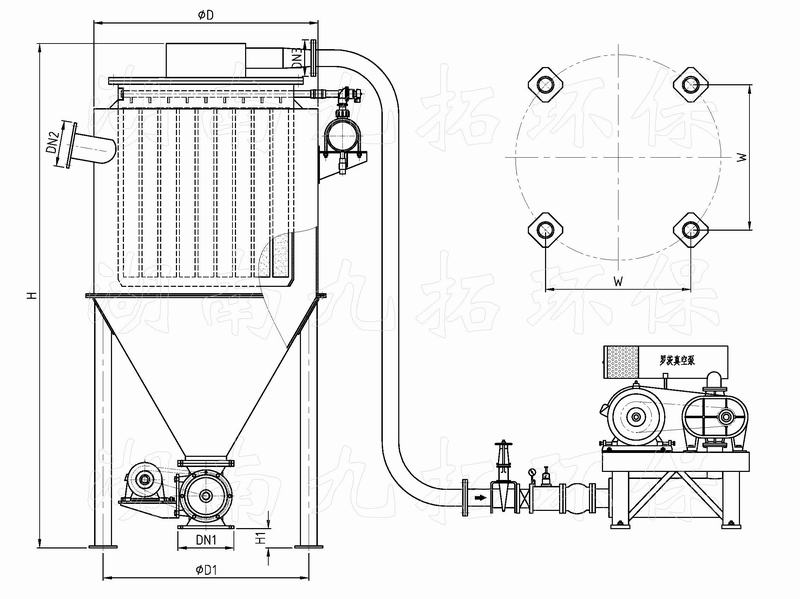
n 吸送泵外形图

n 安装尺寸

n 吸送泵参数表

n 低负压吸送泵输送案例



